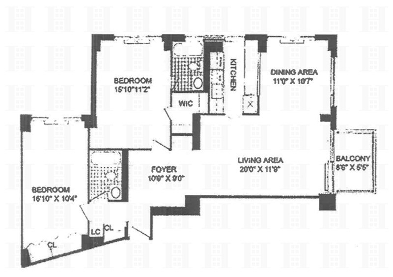
Gramercy Park #24C
Manhattan

Spacious two bedroom, 2 bath apartment offering open iconic city views. Off the wide living area is a balcony large enough to accomodate patio chairs and a table. 

Madison Green offers full time doorman and security. Steps from the FlatIron Building, Madison Square Park and countless shops, restaurants and city wide transportation, Maidson Green is a coveted full time doorman building with fitness room and residents lounge.