100 United Nations Plaza #6G
Manhattan

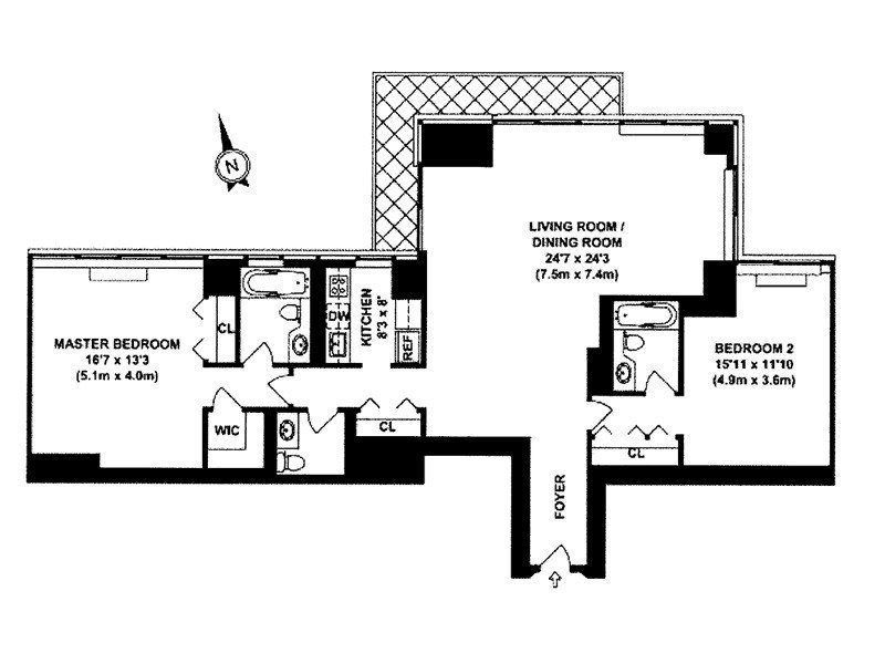
Large 2 bedroom, 2 1/2 bath apartment with OUTDOOR SPACE available at 100 United Nations Plaza – one of Manhattan's premier white glove condominiums. The apartment is open and quiet. Host your guests in style in the spacious living room with a wrap balcony or enjoy the privacy offered by split bedrooms, each with en-suite marble bathrooms. There is a separate powder room as well. The windowed kitchen is a galley style and includes a viking refrigerator. The rest of the apartment has 9 foot ceiling heights and custom crown moldings throughout plus a windowed bath and walk-in-closet in master suite. Located on East 48th Street, you enter 100 United Nations Plaza through a beautifully landscaped gardens and waterfalls and a recently renovated lobby Service is round-the-clock with amazing full time concierge and doormen. On-site management office, party room laundry room and a residents-only fitness center and attended 24-hour garage are available for an additional fee.